- (936) 828-1295
Your Next Chapter Starts Here
In Houston, Texas and Surrounding Areas
Discover Homes and Properties
in vibrant Houston communities, where attractive neighborhoods and modern living come together.
7411 Crown MaplesAtascocita, TX 77346


Mortgage Calculator
Monthly Payment (Est.)
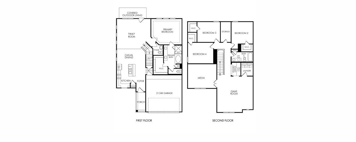
$1,825Brand new, energy-efficient home available by Mar 2026! Downstairs is a generous family room and primary suite with separate shower and tub. Entertain guests or relax in an optional private courtyard. Walk upstairs to a game room, pocket office, media room, and three additional bedrooms. From the low $300s. Nestled in this gated boutique community, Pinewood Trails offers a lock and leave experience to enjoy the future lakes, trails and parks. Just minutes away from Lake Houston, premier shopping, dining, and entertainment, you won’t have to travel far. Each energy-efficient home also comes standard with features that go beyond helping you save on utility bills—they allow your whole family to live better and breathe easier too. Each of our homes is built with innovative, energy-efficient features designed to help you enjoy more savings, better health, real comfort and peace of mind.
| a week ago | Listing updated with changes from the MLS® | |
| 2 months ago | Listing first seen on site |
IDX information is provided exclusively for consumers’ personal, non-commercial use. It may not be used for any purpose other than to identify prospective properties consumers may be interested in purchasing. This data is deemed reliable but is not guaranteed accurate by the MLS.
Data provided by HAR.com © 2026. All information provided should be independently verified.
Did you know? You can invite friends and family to your search. They can join your search, rate and discuss listings with you.